彈簧微啟式安全閥
一、產品概述:
A27H系列彈簧微啟式安全閥適用于工作溫度≤200℃的水、空氣、蒸氣等介質的設備或管路上。A27Y適用于工作溫度≤200℃有腐蝕性介質的設備或管路上,作為超壓保護裝置。
二、工作原理:
A27H系列彈簧微啟式安全閥是為了防止壓力設備和容器或易引起壓力升高或容器內部壓力超過限度而發生爆裂的安全裝置。安全閥是壓力容器、鍋爐、壓力管道等壓力系統使用廣泛的一種安全裝置,保證壓力系統安全運行。
當容器壓力超過設計規定時,安全閥自動開啟,排出氣體降低器內的過高壓,防止容器或管線破壞。而當容器內的壓力降至正常操作壓力時,即自動關閉避免因容器超壓排出全部氣體,從而造成浪費和生產中斷。
彈簧微啟式安全閥主要由閥座、閥瓣閥芯和加載機構三部分組成。閥座有的和閥體是一個整體,有的是和閥體組裝在一起的,它與設備連通。閥瓣常連帶有閥桿,它緊扣在閥座上。閥瓣上面是加載機構,載荷的大小可以調節。當設備內的壓力在一定的工作壓力范圍之內時,內部介質作用于閥瓣上面的力小于加載機構加在閥上面的力,兩者之差構成閥瓣與閥座之間的密封力,使閥瓣緊壓著閥座,設備的介質無法排出。當設備內的壓力超過規定的工作壓力并達到安全閥的開啟壓力時,內部介質作用于鬧瓣上面的力大于加載機構施加在它上面的力,于是閥瓣離開閥座,安全閥開啟,設備內的介質即通過閥座排出、如果安全閥的排量大于設備的安全泄放量,設備內壓力即逐漸下降,而且通過短時間的排氣后,壓力即降回至正常工作壓力。此時內壓作用于閥瓣上面的力又小于加載機構施加在它上面的力,閥瓣又緊壓著閥座,介質停止排出,設備保持正常的工作壓力繼續運行。所以,安全閥是通過閥瓣上介質作用力與加載機構作用力的消長,自行關閉或開啟以達到防止設備超壓的目的。
三、彈簧微啟式安全閥結構特點:
1、彈簧微啟式安全閥具有結構簡單、密封性能好、開啟壓力準確、排放能力大、回座壓差小、調整方便等特點。 2、噴嘴型閥座:閥座為位伐爾噴嘴型閥座,蒸汽流經閥座出口處時達到音速,排放系數大,閥座密封面堆焊鈷鉻鎢硬質合金,耐磨抗沖蝕,壽命長。
3、熱彈性閥瓣:閥瓣設計為熱彈性結構,利用其在介質壓力下微小的變形,提高密封能力,克服安全閥在介質壓力下臨近整定壓力時的前泄現象。閥瓣密封面采用xj****的激光淬火技術,提高了硬度、耐磨性、抗沖抗性。
4、調節螺母:通過調整調節螺母,調整彈簧壓縮量,使閥門能夠很方便、很迅速地獲得準確的整定壓力。
5、背壓調整套:調整閥瓣背壓的輔助機構,通過背壓調整套調整,可獲得合適的回座壓差。上調時,使閥門背壓降低。下調時,使閥門背壓提高。
四、彈簧微啟式安全閥的選用:
由操作壓力決定安全閥的公稱壓力,由操作溫度決定安全閥的使用溫度范圍,由計算出的安全閥的定壓值決定彈簧或杠桿的定壓范圍,再根據使用介質決定安全閥的材質和結構型式,再根據安全閥泄放量計算出安全閥的喉徑。以下為安全閥選用的一般規則。
1、熱水鍋爐一般用不封閉帶扳手微啟式安全閥。
2、蒸汽鍋爐或蒸汽管道一般用不封閉帶扳手全啟式安全閥。
3、水等液體不可壓縮介質一般用封閉微啟式安全閥,或用安全泄放閥。
4、高壓給水一般用封閉全啟式安全閥,如高壓給水加熱器、換熱器等。
5、氣體等可壓縮性介質一般用封閉全啟式安全閥,如儲氣罐、氣體管道等。
6、E級蒸汽鍋爐一般用靜重式安全閥。
7、大口徑,大排量及高壓系統一般用脈沖式安全閥,如減溫減壓裝置、電站鍋爐等。
8、運送液化氣的火車槽車、汽車槽車、貯罐等一般用內裝式安全閥。
9、油罐頂部一般用液壓安全閥,需與呼吸閥配合使用。
10、井下排水或天然氣管道一般用先導式安全閥。
五、彈簧微啟式安全閥安裝說明 :
1、安全閥須***垂直安裝,并***好直接安裝在容器或管道的接頭上。接頭內徑應不小于安全閥的進口通徑。
2、安全閥的出口須***裝設適當的膨脹節,以防止排放管的熱膨脹給安全閥帶來不應有的熱應力。排放管內徑應比閥門出口直徑大,長度盡可能短,避免拐彎。排放管及膨脹節重量不應作用在安全閥上,應固定在建筑上。排放管的中心線與閥體的中心線間距離盡可能的短。對每臺安全閥都應單獨裝設排放管。
3、消聲器的出口處要有足夠的面積,防止產生背壓影響閥門的排放能力。
六、彈簧微啟式安全閥主要零部件材料:
NO. | 零件名稱 | A27H材料 | A27W-P材料 | A27W-R材料 |
1 | 閥體 | HT350 | ZG1Cr18Ni9Ti | ZG1Cr18Ni12Mo2Ti |
2 | 閥座 | 35 | ZG1Cr18Ni9Ti | ZG1Cr18Ni9Ti |
3 | 調節圈 | 2Cr13 | 1Cr18Ni9Ti | 1Cr18Ni12Mo2Ti |
4 | 閥瓣 | 2Cr13 | 1Cr18Ni9Ti | 1Cr18Ni12Mo2Ti |
5 | 彈簧 | 50CrVA | 50CrVA包覆氟塑料 | 50CrVA包覆氟塑料 |
6 | 閥桿 | 2Cr13 | 2Cr13 | 1Cr18Ni9Ti |
7 | 調整螺桿 | 45 | 2Cr13 | 1Cr18Ni9Ti |
8 | 保護罩 | ZG200-400 | ZG200-400 | 1Cr18Ni9Ti |
密封面材料 | 堆焊D507 | 堆焊Co基硬質合金 | ||
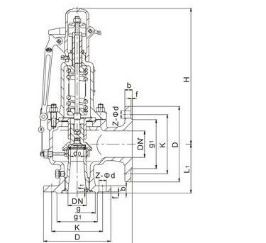
七、外形尺寸和連接尺寸:

公稱通徑 | 尺寸 | |||||
do | Rc | L | L1 | G | H | |
15 | 10 | 1/2" | 40 | 65 | 1/2" | 135 |
20 | 15 | 3/4" | 45 | 70 | 3/4" | 140 |
25 | 20 | 1" | 45 | 76 | 1" | 155 |
32 | 25 | 11/4" | 55 | 85 | 11/4" | 170 |
40 | 32 | 11/2" | 55 | 85 | 11/2" | 310 |
50 | 40 | 2" | 67 | 100 | 2" | 322 |
65 | 50 | 21/2" | 76 | 112 | 21/2" | 344 |
80 | 65 | 3" | 110 | 135 | 3" | 395 |
八、訂貨須知: 如果你對:A42Y-彈簧全啟封閉式安全閥感興趣請你按下列要求咨詢或訂貨。
1、①安全閥產品名稱與型號②安全閥口徑③安全閥是否帶附件以便我們的為您正確選型④安全閥的使用壓力⑤安全閥的使用介質和溫度。
2、若已經由設計單位選定中偉公司的安全閥型號,請按型號直接向我司銷售部訂購。
3、當使用的場合非常重要或環境比較復雜時,請您盡量提供設計圖紙和詳細參數,由我們的中偉公司工程師為您審核把關。

